La Casa Container 35 m² – Modello A Cottage di Brusato Container è una soluzione abitativa “Chiavi in Mano” che non teme confronti con l’edilizia tradizionale. Grazie alle dimensioni generose (6,0 x 5,8 metri), offre un ambiente spazioso e ben organizzato, ideale come prima casa, casa vacanze o investimento per affitti brevi.
Il punto di forza assoluto è la tecnologia costruttiva: i pannelli sandwich in poliuretano da 100 mm offrono una trasmittanza termica eccellente (0,22 W/m²K), superando molti standard attuali. A differenza delle strutture in legno, questo materiale è imputrescibile, non teme l’umidità e non viene attaccato da insetti o roditori, garantendo una durata illimitata con zero manutenzione.
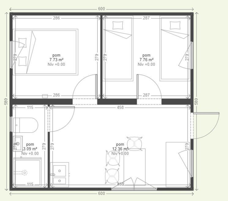
Caratteristiche Tecniche & Prestazioni
- Dimensioni Esterne: 6,0 m (Lunghezza) x 5,8 m (Larghezza) x 2,6/2,4 m (Altezza interna).
- Superficie Totale: 35 m².
- Isolamento (Pareti/Tetto/Pavimento): Poliuretano spessore 100 mm (Valore U: 0,22 W/m²K).
- Layout Interno: 2 Camere da letto, Bagno attrezzato, Zona Giorno con Angolo Cottura.
- Serramenti: Finestre in PVC doppi vetri con tapparelle integrate + Porta d’ingresso coibentata.
- Impiantistica: Elettrico 230V completo (LED), Riscaldamento (Termoconvettori), Ventilazione meccanica.
Dotazioni Incluse
- Bagno: Box doccia 90×90, Lavabo con mobile, WC compatto, Boiler 50L, Ventola aspirazione.
- Cucina: Angolo cottura con 5 vani, predisposizioni per frigo/lavello/elettrodomestici.
- Camere: Dotate di radiatori elettrici, porte in acciaio e finestre ampie (90×110 cm).
Vantaggi per il Cliente
- Pronto da Abitare: Arriva con tutti gli allacciamenti (acqua, luce, scarico) già predisposti. Basta collegarsi alle utenze.
- Comfort Tutto l’Anno: L’isolamento ad alte prestazioni mantiene il caldo d’inverno e il fresco d’estate, abbattendo le bollette.
- Durata e Igiene: Materiali inattaccabili da muffe e parassiti, ambiente interno sano grazie alla ventilazione integrata.
- Servizio Completo: Il prezzo include la consegna e lo scarico con gru (HDS) direttamente nel tuo terreno.
Installazione
È richiesta una base di fondazione (platea di cemento o plinti) predisposta con gli scarichi e gli allacciamenti secondo il nostro schema tecnico. La struttura è modulare e robusta.
